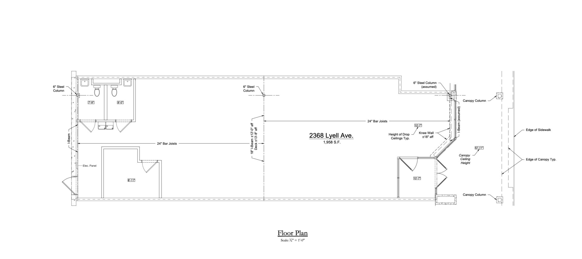
Howard Commons Plaza is located at a heavily traveled intersection that contains many high profile national and local tenants. There is a signalized intersection to and out of the center. Easy access to 390/490. Some of the major retailers nearby are Aldi Supermarket, Wegmans, Verizon, Mcdonald’s, Taco Bell, Little Caesar’s etc. Two available units from 1,950 SF to 3,500 SF. Please call for leasing rates.
| Space | Size | Term | Rent |
|---|---|---|---|
| Suite 10 | 1,958 SF | Negotiable | Negotiable |
| Suite 12 | 1,733 SF | Negotiable | Negotiable |
Please review and complete the required information for the CA to gain access to this property...
Only serious buyers and lenders considering the purchase of or extension of financing for the Property are allowed to accept the terms of this Confidentiality Agreement and access Confidential Information. Access for any other purpose is strictly prohibited. Access is strictly prohibited for any borrower, debtor, guarantor, or other obligor with respect to the Property, or any affiliate, representative, agent, accountant, or attorney of any such party.
This Confidentiality Agreement (“Agreement”) is made by the party seeking to access information (“you”, “your”) regarding a real estate asset or note secured by real estate (“Property”). This Agreement benefits the Property seller (“Seller”) and Seller’s listing broker (“Broker”). By acknowledging this Agreement, you represent and warrant that you are accessing Confidential Information solely in connection with a possible Transaction involving the Property, and that you are not the borrower, debtor, guarantor, or other obligor with respect to the Property, nor an affiliate, representative, agent, accountant, or attorney of any such party.
As used in this Agreement, “Confidential Information” includes all information relating to the Property provided by or on behalf of Seller to you and your Representatives (as defined below) in any form, whether provided before or after the date you acknowledge this Agreement. Confidential Information does not include information that: (a) was previously known to you without any obligation of confidentiality, so long as you did not receive such information from Seller or Broker; (b) is or becomes publicly available other than through a disclosure by you or your Representatives; (c) is independently developed by you or your Representatives without knowledge of or access to Confidential Information; or (d) is lawfully received from a third party not bound by a confidentiality agreement with Seller or Broker.
You may use Confidential Information solely for evaluating the purchase of or extension of financing for the Property (“Transaction”), and not for any other purpose. Unauthorized use of Confidential Information is prohibited and may cause irreparable harm to Seller and Broker. This Agreement does not convey any intellectual property rights or licenses in or to Confidential Information.
Confidential Information is proprietary and confidential. You agree to take reasonable measures to protect Confidential Information from unauthorized access or use and not to disclose it to any third party without prior written consent from Seller or Broker. You may disclose Confidential Information on a need-to-know basis to your Representatives who are informed of and agree to be bound by this Agreement. You and your Representatives are jointly and severally liable for any breach of this Agreement. You must promptly notify Seller and Broker of any unauthorized disclosure or security breach involving Confidential Information. You may disclose Confidential Information if required by law, but must notify Seller and Broker beforehand.
Without prior written consent from Seller or Broker, you agree not to communicate about the Property with any governmental agency, tenant, property manager, lender, borrower, guarantor, employee, or third party whose information is obtained from Confidential Information.
You agree to comply with all applicable laws and regulations regarding Confidential Information, including the Gramm-Leach-Bliley Act.
If you breach this Agreement, Seller and Broker may pursue any legal or equitable remedies available. Seller may seek an injunction to prevent further breaches without posting a bond.
Seller and Broker disclaim all warranties regarding Confidential Information, including warranties of merchantability, fitness for a particular purpose, and non-infringement. Seller and Broker are not responsible for any expenses, losses, damages, or actions resulting from your use of Confidential Information. Until a definitive agreement is executed, Seller is under no legal obligation to you regarding the Property.
You are responsible for conducting your own due diligence regarding the Property. Any inspections or investigations must be coordinated with Seller or Broker, and you are liable for any resulting damages or costs. You agree to indemnify and hold Seller and Broker harmless from any such liabilities.
You release Seller and Broker from all claims arising from the information contained in Confidential Information. You agree to indemnify Seller and Broker from any losses or claims resulting from your breach of this Agreement.
Your right to use Confidential Information expires upon the earlier of (a) ceasing to pursue the Transaction, (b) receiving a termination notice from Seller or Broker, or (c) one year from the date of this Agreement. You remain bound by this Agreement regarding Confidential Information received before expiration or termination.
Upon termination of your rights, you must cease using and destroy all copies of Confidential Information, certifying such destruction if requested. A single archival copy may be retained as required by law or internal policies, subject to this Agreement’s terms.
This Agreement is governed by the laws of the state where the Property is located, excluding its conflict of laws principles.
This Agreement binds and benefits the parties and their successors and assigns. You may not assign this Agreement without prior written consent from Seller or Broker.
This Agreement supersedes all prior agreements regarding its subject matter. A party’s failure to enforce any right does not waive future enforcement. This Agreement may only be modified in writing. The disclosure of Confidential Information does not imply an intent to sell or purchase the Property or commit to financing. If any term is invalid, the remaining terms remain in effect. You represent that you are authorized to enter this Agreement and legally bind the entity you represent. Acceptance of this Agreement electronically is binding and enforceable under applicable laws.
By accepting this Agreement, you acknowledge that your information may be shared with Seller, Broker, and other relevant parties.
©2024 Ren Managment
